The Asbury

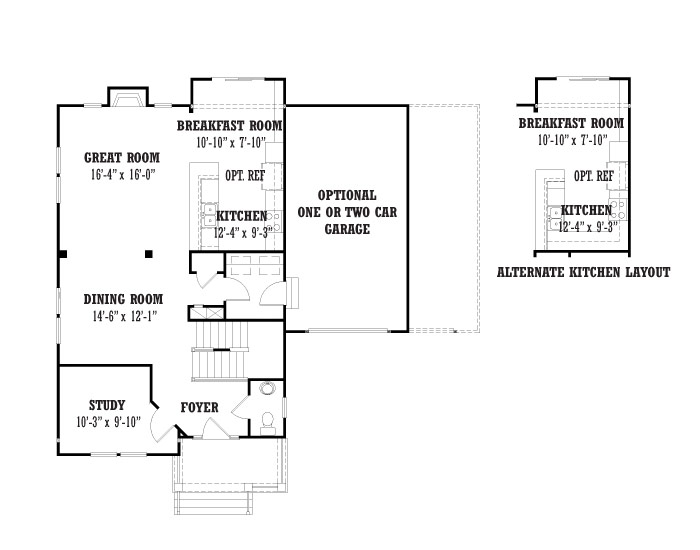
This home is perfect for budget-conscious families. The full front porch elevation expands the living space outside, and the standard, one-car garage is recessed to create a charming streetscape. Features include full basement, hardwood entry foyer, dining room, large open kitchen with huge breakfast island, nook bay, powder room and great room. Upstairs the master suite features a walk-in closet and spacious bath. Three additional bedrooms, a hall bath and a convenient laundry room complete the upstairs space.

Main Features

  • 3 Bedrooms
  • 3.5 Bathrooms
  • 3 Stories
  • Two – Car Attached Garage
  • Additional Features: Coming Soon!

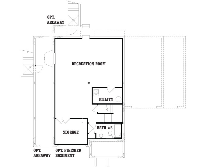
Floor Plan

Recent Builds